Description
WELCOME TO PANAMA CENTRAL TOWER
A major hospitality, residential, and entertainment development located in the center of Panama City. The project brings together a five‑star branded hotel, executive residential suites, and an integrated casino within a single 27‑floor tower. It is designed to attract international visitors, business travelers, and long‑stay guests, creating strong long‑term commercial potential for investors.
Panama City is one of the most visited destinations in Latin America for tourism, business, and lifestyle. The city benefits from a strong hospitality sector, recognized cultural attractions, a growing food scene, and steady international demand throughout the year. This environment supports stable occupancy and long‑term value for investors seeking diversification and passive income.
The tower includes 306 keys, combining hotel rooms and branded executive suites. Amenities include restaurants, a fitness center, spa, rooftop pool, rooftop bar, business center, and a premium casino. Its central location provides direct access to business districts, commercial zones, and lifestyle destinations, making it one of the most strategically positioned developments in the city.
Prime Central Location
- Located in a high‑demand urban corridor in Panama City
- Surrounded by restaurants, cultural venues, historic architecture, and entertainment districts
- Known for safety, walkability, and strong infrastructure
- Easy access to transportation routes connecting to the airport and coastal areas
- Consistent tourism and corporate travel throughout the year
Project Features
- 27 floors combining hotel, branded suites, and entertainment
- Five‑star branded hospitality
- 306 total keys, including 180 hotel rooms and 126 executive suites
- Full amenities including spa, fitness center, rooftop pool, rooftop bar, restaurants, business center, and casino
- Positioned in one of the most established and active areas of Panama City
Investment Pathway 1 - Co‑Ownership in the Branded Hotel and Casino
- Total investors: 280
- Investment amount: 300,000 USD
- Total project value: 84 million USD
- Co‑ownership in a five‑star branded hotel
- Includes 180 hotel rooms and access to all hotel amenities
- Casino, spa, restaurants, bars, parking, and conference spaces
- Guaranteed buyback after five years
- No annual returns
- Renovation timeline: 18 months
This pathway is designed for investors who want a secure, hands‑off structure with a defined exit strategy. The guaranteed buyback provides predictability with integrated casino support for long‑term asset value.
Investment Pathway 2 - Individual Ownership of Branded Executive Suites
- Total investors: 126
- Investment starting at 306,652.50 USD
- Total project value: 44.4 million USD
- Individual title deed ownership
- Suite sizes from 50 to 85 square meters
- Rental split: 60 percent owner and 40 percent operator
- Estimated annual return: 5 to 6 percent
- One month of complimentary stay per year
- Capital appreciation potential
- Renovation timeline: 18 months
- Five suite types available
This pathway is suited for investors seeking direct ownership, rental income, and long‑term capital growth. The branded suite model benefits from the hotel’s operational structure, supporting consistent occupancy and professional management.
Lifestyle and Amenities
- Elegant lobby designed for comfort and social interaction
- Rooftop pool and bar with panoramic city views
- Spa and wellness facilities
- Fitness center and business center
- Premium casino integrated into the hospitality experience
- Restaurants offering international cuisine
- Modern hotel rooms and suites designed for relaxation and extended stays
Panama Central Tower offers a rare opportunity to invest in a fully branded, amenity‑rich development in one of Latin America’s most dynamic capitals. With two investment pathways available, investors can choose the model that best aligns with their goals, whether focused on secure co‑ownership or individual title‑based returns.
CONTACT US TODAY
Read MoreFeatures
- City Views
- Conference Room
- Elevator
- Outdoor Swimming Pool
- Parking Space
- Restaurant-Lounge-Bar
- Roof Terrace
- Spa
Location
Approximated Location
- Airport: 19,5 km
- Hospital: 1,9 km
- Supermarket: 1 km
- Bank: 1,1 km
Availability · Only 20 Units Available
Units
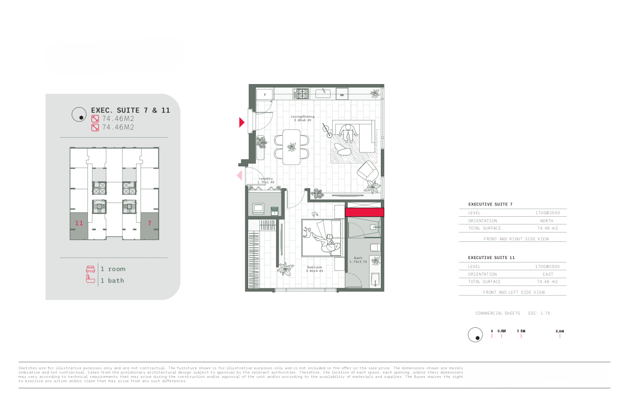
| Unit | Property Type | Floor | Bedrooms | Parking | Area (SQM/SQFT) | Outdoor Area (SQM/SQFT) | Price | Floorplan |
|---|---|---|---|---|---|---|---|---|
| Suite 17-1 | N/A | 17F | 1 | Yes | 53/570 | N/A | $308.096 | View plan |
| Suite 17-5 | N/A | 17F | 1 | Yes | 57/614 | N/A | $328.482 | View plan |
| Suite 17-11 | N/A | 17F | 1 | Yes | 74/797 | N/A | $430.007 | View plan |
| Suite 17-12 | N/A | 17F | 1 | Yes | 64/689 | N/A | $368.445 | View plan |
| Suite 18-8 | N/A | 18F | 1 | Yes | 66/710 | N/A | $378.551 | View plan |
| Suite 18-13 | N/A | 18F | 1 | Yes | 57/614 | N/A | $328.482 | View plan |
| Suite 19-2 | N/A | 19F | 1 | Yes | 85/915 | N/A | $491.741 | View plan |
| Suite 19-14 | N/A | 19F | 1 | Yes | 53/570 | N/A | $306.653 | View plan |
| Suite 20-3 | N/A | 20F | 1 | Yes | 54/581 | N/A | $313.583 | View plan |
| Suite 20-12 | N/A | 20F | 1 | Yes | 64/689 | N/A | $368.445 | View plan |
| Suite 21-9 | N/A | 21F | 1 | Yes | 85/915 | N/A | $492.319 | View plan |
| Suite 21-13 | N/A | 21F | 1 | Yes | 57/614 | N/A | $328.482 | View plan |
| Suite 22-11 | N/A | 22F | 1 | Yes | 74/797 | N/A | $430.007 | View plan |
| Suite 22-14 | N/A | 22F | 1 | Yes | 53/570 | N/A | $306.653 | View plan |
| Suite 23-1 | N/A | 23F | 1 | Yes | 53/570 | N/A | $308.096 | View plan |
| Suite 23-8 | N/A | 23F | 1 | Yes | 66/710 | N/A | $378.551 | View plan |
| Suite 24-3 | N/A | 24F | 1 | Yes | 54/581 | N/A | $313.583 | View plan |
| Suite 24-10 | N/A | 24F | 1 | Yes | 65/700 | N/A | $372.661 | View plan |
| Suite 25-5 | N/A | 25F | 1 | Yes | 57/614 | N/A | $328.482 | View plan |
| Suite 25-6 | N/A | 25F | 1 | Yes | 64/689 | N/A | $368.445 | View plan |

